
-Location- | Shanghai 安墁西郊
-Area- | 面积 783㎡
-Style-| 风格 现代时尚
一套房子从初衷,到设计的最终还原与呈现,不是易事。
设计师主张让才情不凡的人文气质化作设计灵感在各式家居中显现。

设计师和业主充分沟通,了解要进行改造的房屋的优缺点以及业主的生活形态,用脑去思考,用手去勾画。
业主年轻好客,希望未来的家可以邀请朋友聚会。
顺应业主好客的个性,设计师重新布局动线,将公共领域的比例扩充,打破生硬冰冷的砖墙,开设大落地窗连接室内外空间,呈现宽敞明亮的空间质感。
空 间 规 划
STRUCTURE LAYOUT
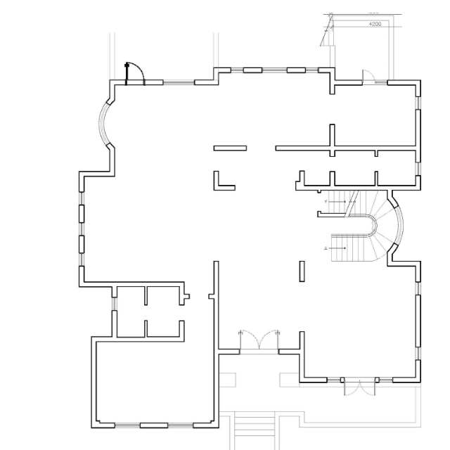
1F层是日常活动空间
会客厅、休闲厅、12人餐桌、中西厨房、干湿分离的卫生间还有室外超大休闲露台。

2F层是居者私密空间
三个大套房,均含括卧室、衣帽间、卫生间以及阳台,二楼还有一个书吧以及休闲区域。

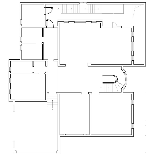
B1F层是休闲娱乐空间
保姆房两间、车库、品茗区、玩具房、洗衣房、书房、酒窖;而阁楼则是作为储物空间。

风 格 基 调
STYLE TONE
简约风格近来深受喜爱,它起源于现代派的极简主义。
本案在设计元素,色彩,照明,原材料都做了减法,刨去多余的装饰,传递结构本身的形式美。



风格强调突破旧传统,强调新建筑,重视功能和空间组织,讲究材料自身的质地和色彩的配置效果,奠定了空间精致且实用的基调。
自然光的铺洒下,铺叙出温馨之感。


结 构 改 造
STRUCTURE DESIGN
在本案中,门厅玄关空间开阔,有种身处艺术走廊的延伸感。

原本空间没有设置电梯布局,楼梯也是入户右转的U形楼梯,笨重又浮华。
设计师将楼梯挪移至入户左边,增设电梯,环抱而上的楼梯,使得整个空间布局和谐且实用。



满足空间功能下,设计师将原楼梯处摇身设立钢琴曲,凌驾于会客厅与餐厅之中,边际空间丝毫不浪费,空间宽敞透亮。
在这艺术烘托的空间氛围下,拉近彼此的距离,必能尽到宾客之仪。

中厨与西厨相互连通,橱柜以木质、大理石、玻璃进行贯穿,无把手的柜体立面,秩序与质感兼具。
超大中岛台延伸至10人的餐食区,堆叠出温暖静谧的时光。
再跃一步,端着红酒杯,便可抵达户外丰富空间,让夜晚增添了许多韵味。



色 彩 材 质
MATERIAL COLOR
在整体色彩的把控上,硬装整体以灰粽色系为主,辅以明亮的软装点缀,温暖沉稳的基调且不失有趣与生命力。


现代时尚的空间里,大面积的木饰面,舒缓而闲适,丰富的纹理填充带来流动化的视觉感知,交迭出更为舒适、温雅的空间体验。


家从来都不是简单的风格而言,每一位居者都有不一样的喜好和需求。他们的经历、思维、眼界、习惯各有不同。
星杰全案设计依托国际化的设计理念和独创的海派精工体系,秉持严选产品的标准,通过数字化工具,为客户实现“专业设计、价格公道、预算可控、工期有保障、效果可还原”的装修体验。

